
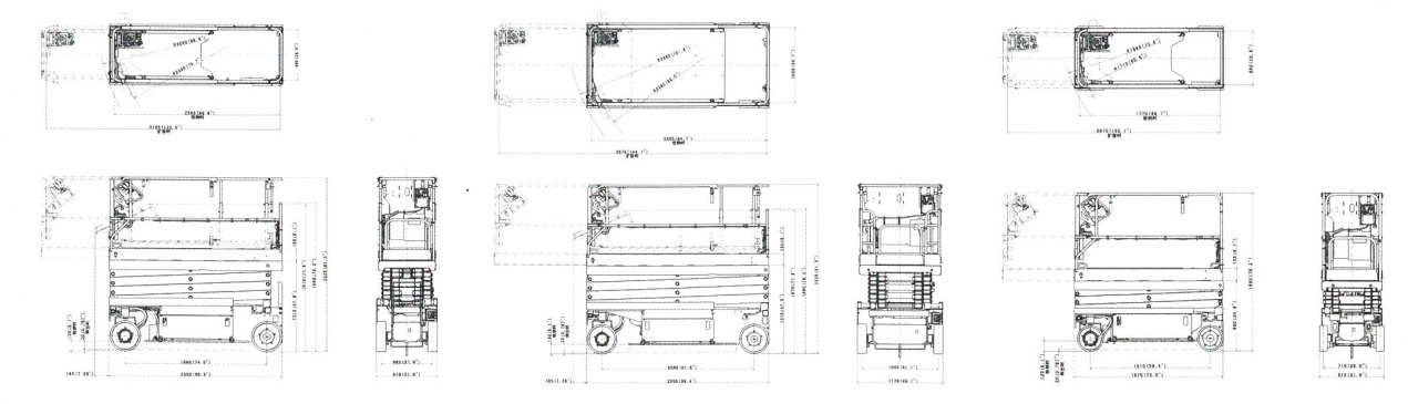
| 型號名稱 | |||||
| 型號 | SV10EWL | ||||
| 名稱 |
自行走剪叉式高空作業平臺
|
||||
| 工作斗 | |||||
|
最大載荷
|
8m:450kg 10m:320kg
|
||||
|
平臺延伸部載荷
|
120kg
|
||||
|
最大離地高度
|
9.68m
|
||||
|
最底離地高度
|
1.215m
|
||||
|
內側尺寸mm(長?寬?高)
|
2405?1035?1110
|
||||
|
平臺延伸長度
|
1270mm
|
||||
| 升降裝置 | |||||
|
型式
|
一端固定4節?式
|
||||
|
升降速度(無裁荷時)
|
8.5m/55s(上升)
8.5m/60s(下降) |
||||
| 行走裝買 | |||||
|
行走速度(裁荷80kg時)
|
4.0km/h(收回時)
0.8km/h(上升時) |
||||
|
爬坡能力(載荷80kg時)
|
14°(25%坡度)
|
||||
| 電源 | |||||
|
輸入電壓
|
單相AC220V
|
||||
|
蓄電池電壓
|
DC24V
|
||||
|
蓄電池容量(型號X個數)
|
185Ah(T105x4)
|
||||
| 安全裝置 | |||||
|
過載限制裝置、路面傾斜警報裝置、行走限制裝置、上升限制裝置、行走&升降報警裝置、緊急停止裝置、深坑保護裝置
|
|||||
| 其它裝置 | |||||
|
蓄電池容量計、均衡轉向裝置、接地帶
|
|||||
| 產品參數 | |||||
|
整機尺寸mm (全長?全寬?全高)
|
2500?1170?2325
|
||||
|
整機重量
|
2960kg
|
||||
|
最小回轉半徑
|
2580mm(前輪外側輪中心)
|
||||

SV-E系列自行走剪叉式高空作業平臺為各種工作場所提供便捷高效的服務,平臺具有高性能的穩定操作系統。行走采用AC無碳刷馬達驅動,有效減少平臺移動產生的損耗,綜合使用周期提高了150%,充電器采用了溫度修正功能,有效延長蓄電池使用壽命。
| 提高工作平臺前后方向的穩定性 | 降低工作平臺作業時擺動量 | 狹窄機身,收藏高度低于2米,能進入常規貨梯,具有良好的通過性 ,適用于室內樓宇及狹小場所作業。![]() |
調整了剪叉聯桿的安裝位置 ,提高了平臺起伸后的穩定性。![]() |
為了給作業者提供更安全、舒適的作業環境 ,從多方面降低工作平臺作業時的擺動量。![]() |
|
| 智能化配置,實時掌控整機狀況 | 交流傳動電動機 | 靈巧機身,工作平臺護欄可折疊,良好的操控感,充電作業時間長,適用于多種作業現場的安裝維護作業。![]() |
標配上/下部操作箱電量指示燈和異常指示燈,方便作業人員能及時確認整機狀態。操作簡便,白日常點檢、維護更簡單。![]() |
采用節能的交流傳動電機,保證了較長的工作時間。![]() |
|
| 平臺延伸及折疊護欄 | 寬體機身,平臺更穩定,作業平臺寬大,荷載能力強,且水平延伸可達1270mm,適用于大載重工況作業。![]() |
|
工作平臺可水平延伸,NS/NL機型延伸900mm,WL機型延伸可達1270mm。除NS機型外其它機型護欄均可折疊。![]() |
||
浙江愛知工程機械有限公司 版權所有(C)2021?網絡支持生意寶?網盛建站?著作權聲明
公司電話:0571-81996301 地址:浙江省杭州經濟技術開發區金喬街180號